登录|注册|
购物车| 装修热线:18955645334
您的位置:中华装修网 >装修案例 >长沙铭装装饰工程有限公司
长沙铭装装饰工程有限公司
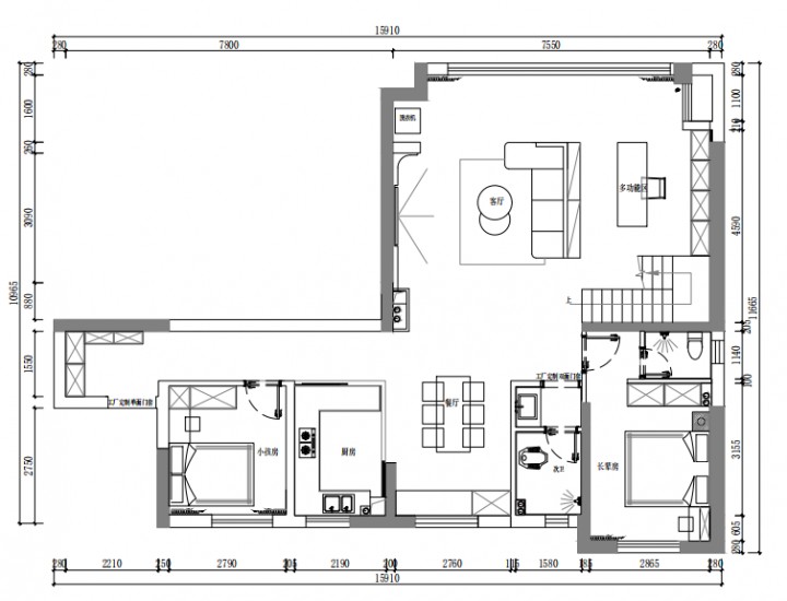
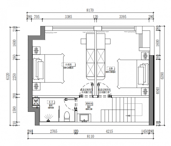
设计理念:简洁自然的色调透露着温柔,温柔的奶茶色营造舒适自由的家,没有过多复杂抢眼的色彩,全屋以奶油色为基调,舒适治愈,沉沦于温暖心动
户型: 复式
风格:
价格: 10-20万
空间: 客厅 餐厅